VENDU EN 2 VISITES - Pavillon moderne de 160 m² – Saint Aubin des Bois (28300), à 10 km de Chartres
VENDU EN 2 VISITES - Pavillon moderne de 160 m² – Saint Aubin des Bois (28300), à 10 km de Chartres
Découvrez ce pavillon contemporain de 2018, classé en DPE "A", situé dans la charmante commune de Saint Aubin des Bois, à seulement 10 km du centre-ville de Chartres. Cette maison allie confort, modernité et respect de l’environnement, dans un cadre paisible et idéal pour une famille.
Descriptif du bien
Code postal : 28300
Surface habitable : 160 m²
surface terrain : 610 m²
Nombre de chambre(s) : 4
Nombre de pièces : 6
Diagnostics de performance énergétique
Valeur exprimée en kWhEP/m².an
Montant estimé des dépenses annuelles d'énergie de ce logement pour un usage standard est compris entre 926 € et 1252 € . 2021 étant l'année de référence des prix de l'énergie utilisés pour établir cette estimation.
Descriptif de l'offre
Un espace de vie généreux et modulable
Avec ses 160 m² habitables, ce pavillon offre un agencement pensé pour maximiser le confort et la luminosité :
-
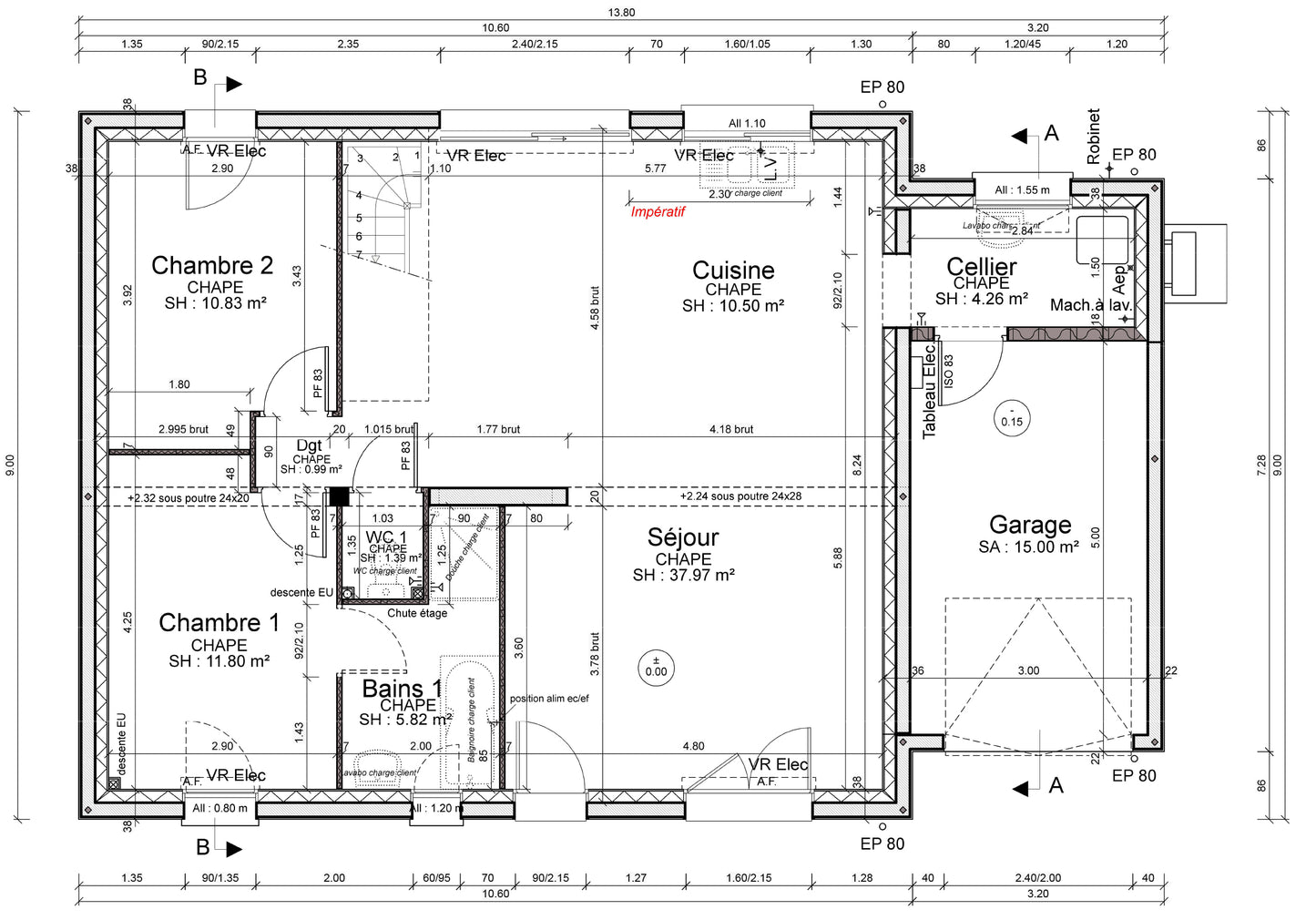
Rez-de-chaussée :
- Une pièce de vie de 49 m², comprenant un salon spacieux et une cuisine américaine moderne, équipée et aménagée, parfaite pour des moments conviviaux.
- Deux chambres de plain-pied de 10,8 m² et 11,8 m² offrant pour la seconde un accès direct à une salle de bain privative de 5,8 m².
- Un cellier de 4,2 m², pratique pour le rangement, et un WC indépendant.
- Un garage attenant de 15 m², accessible depuis la maison.
-
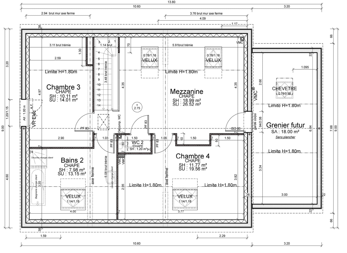
À l’étage :
- Deux grandes chambres de 14 m² et 13,1 m² au sol, idéales pour les enfants ou les invités.
- Une mezzanine de 26,5 m², facilement transformable en cinquième chambre ou en salle de jeux.
- Une salle de bain spacieuse de 13,1 m², équipée d’une douche et pré-équipée pour une seconde baignoire.
- Un potentiel supplémentaire avec les 18 m² situés au-dessus du garage, prêts à être aménagés en sixième chambre ou en bureau.
Un terrain clos et entretenu pour vos loisirs
Le pavillon est édifié sur un terrain de 610 m², une terrasse de 36 m² orientée Ouest, entièrement clôturé et magnifiquement entretenu, idéal pour :
- Vos moments de détente en famille ou entre amis.
- Un espace sécurisé pour les enfants ou les animaux.
- Un accès pratique grâce à un portail automatique.
Des équipements modernes et écologiques
- Chauffage performant : pompe à chaleur Air/Eau, avec un chauffage au sol pour le rez-de-chaussée et des radiateurs à l’étage.
- Construction conforme à la norme RT2012, gage d’excellentes performances énergétiques et d’une faible consommation.
- Assainissement tout-à-l’égout, pour un confort moderne.
Saint Aubin des Bois : cadre de vie idéal à proximité de Chartres
La commune de Saint Aubin des Bois offre un équilibre parfait entre vie à la campagne et proximité urbaine. Voici ses principaux atouts :
- Proximité de Chartres : Située à seulement 10 km (environ 15 minutes en voiture), profitez de toutes les commodités, commerces et infrastructures d’une ville dynamique.
- Accès aux écoles et transports scolaires : Ramassage scolaire organisé pour les écoles, collèges et lycées de la région. Établissements éducatifs situés à moins de 10 minutes.
- Vie quotidienne facilitée : Fontaine-la-Guyon, à 5 minutes, offre des commerces de proximité, une pharmacie et des services essentiels.
- Activités et loisirs : Saint Aubin des Bois est entourée de nature, avec des sentiers de randonnée et des espaces pour les activités en plein air.
- Accessibilité : Bien desservie par les axes routiers principaux, la commune est un excellent compromis entre sérénité et praticité.
Un pavillon prêt à accueillir votre famille
Ce pavillon de 2018 est en parfait état, ne nécessitant aucun travaux. Ses volumes généreux et son potentiel d’aménagement en font une maison évolutive qui saura répondre à vos besoins présents et futurs.
Ne laissez pas passer cette opportunité unique à Saint Aubin des Bois.
Contactez-nous dès aujourd’hui pour organiser une visite et découvrir par vous-même le charme et les avantages de ce pavillon exceptionnel
Visites uniquement sur Rendez-vous
Contactez dès maintenant Senonches-Immobilier : Denis BERRANGER au 0777960255




















