VENDUE - Maison 6 pièces - 124 m² - Saint-Ouen-Marchefroy (28260)
VENDUE - Maison 6 pièces - 124 m² - Saint-Ouen-Marchefroy (28260)
Descriptif du bien
Code postal : 28260
Surface habitable : 124 m²
surface terrain : 1000 m²
Nombre de chambre(s) : 4
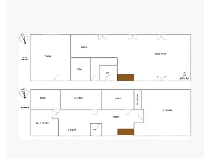
Nombre de pièces : 6
Diagnostics de performance énergétique
Valeur exprimée en kWhEP/m².an
Montant estimé des dépenses annuelles d'énergie de ce logement pour un usage standard est compris entre 926 € et 1252 € . 2021 étant l'année de référence des prix de l'énergie utilisés pour établir cette estimation.
Descriptif de l'offre
28260 SAINT-OUEN-MARCHEFROY- A 5 MINUTES DE ANET ET 15 MINUTES DE HOUDAN - MAISON LUMINEUSE AVEC JARDIN - A 30 MINUTES EN TRAIN DE LA GARE DE PARIS-SAINT-LAZARE
EffiCity , l’Agence qui estime votre bien en ligne, vous propose cette maison familiale de 124 m² orientée plein SUD édifiée sur une parcelle de 1000m².
Au rez-de-chaussée, cette maison vous offre une belle pièce de vie de 55m² équipée d'un poêle à bois, une cuisine aménagée ouverte, un cellier, un WC et l'accès au garage accolé.
A l'étage se trouve deux grandes chambres disposant de multiples rangements, deux pièces pouvant être aménagées à votre souhait en chambre, bureau ou dressing, une salle de bain entièrement rénovée avec douche et baignoire, un WC séparé et un bureau traversant le palier.
A l'extérieur, cette maison dispose d'un paysager fruitier avec un abri, un apprenti et un bûcher ainsi que d'une cour avec portail manuel.
Aucun travaux à prévoir.
La commune de Saint-Ouen-Marchefroy est située à 20 minutes en voiture de MANTES-LA-JOLIE (78) desservant la Gare Paris-Saint-Lazare en 30 minutes en train.
A proximité : écoles maternelles, primaires et secondaires, commerces et toutes commodités.
Visites uniquement sur Rendez-vous
contactez dès maintenant ELONIS-Immobilier : Elodie LABBE au 0617324965 - elabbe@efficity.com ou Denis BERRANGER au 0777960255 - dberranger@efficity.com.
Les informations sur les risques auxquels ce bien est exposé sont disponibles sur le site Géorisques : http://georisques.gouv.fr Évaluez simplement et rapidement les risques de votre bien et réaliser votre état des risques réglementés, pour l'information des acquéreurs et des locataires (ERRIAL)

